Котел на древесных отходах 1.1 МВт
Твердотопливный котел на древесных отходах 1.1 МВт применяется для сжигания сырых и влажных дров, бревен, поленьев, горбыля, щепы, коры, стружки, опилок, досок, поддонов, ДСП.
Котел на древесных отходах мощностью 1.1 МВт используется на предприятии деревообработки, мебельного производства, на пилорамах, в цехах лесопиления, лесхозах для отопления и горячего водоснабжения, а также с целью утилизации не пригодных для производства остатков переработки древесины.
Котел утилизатор древесных отходов 1.1 МВт с подовой топкой имеет ряд преимуществ:
- Большой объем топочной камеры;
- Сжигание влажного топлива за счет пояса зажигания;
- Полное догорание топлива в топке;
- Высокоэффективная подача воздуха в топку.
Котел на отходах деревообработки 1.1 МВт
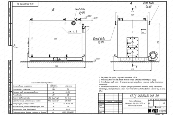
Производственный водогрейный котел на отходах деревообработки российского производства мощностью 1.1 МВт конструктивно состоит из блока котла и ручной подовой топки.
Конструкция топки состоит непосредственно из подовой топки, системы воздуховодов, поворотной камеры дожига.
Футеровка топки выполняется из огнеупорного кирпича для обеспечения более высокой температуры в топочной камере, что делает процесс горения более эффективным и способствует лучшей теплоотдаче. Сушку влажного топлива обеспечивает пояс зажигания. В поде топки расположена система воздуховодов, выполняющая функцию, как подогрева, так и распределения на первичную и вторичную подачу воздуха. Находящаяся на выходе из топки поворотная камера дожига применяется для догорания легких и мелких частиц топлива, захватываемых потоком уходящих газов. Для очистки конвективных поверхностей нагрева от сажестых отложений в конструкции агрегата предусмотрены люки.
Гидравлическая схема потока воды в агрегате исключает образование застойных зон, перегрев поверхностей нагрева, обеспечивает хороший теплосъем. Теплоизоляция обеспечивает отсутствие присосов холодного воздуха в топку и максимально уменьшает потери тепла через стенки котлоагрегата.
Котел на отходах лесопиления 1.1 МВт имеет объемную топочную камеру, позволяющую единовременно загружать большое количество топлива в топку. Учитывая ваши предпочтения, мы можем произвести котельную установку с увеличенным объемом дверей, более высокой подовой топкой, дополнительными окнами для удобства обслуживания.
Котел для сжигания древесных отходов 1.1 МВт принцип работы
В топке агрегата твердое топливо укладывается на пол топливника – под. Горение топлива происходит от верхних слоев к нижним. Образующиеся в результате сгорания угли разогревают нижние слои топлива и стимулируют процесс горения. При подовом горении все угли остаются в топке и полностью догорают, отдавая тепло.
Первичный воздух проникает в зону горения и постепенно перемещается к задней стенке топки, тем самым образуя минимальное количество золы. Вторичный воздух с большой скоростью дожигает продукты горения.
При верхнем горении потребность в воздухе всегда одинаковая, поэтому может быть отрегулирована единовременно.
Комплект поставки
Твердотопливный котел на отходах деревообработки и лесопиления 1.1 МВт поставляется готовым напольным блоком в обшивке. С котлоагрегатом поставляется паспорт и инструкция по эксплуатации.
В комплект входят запорная арматура, КИП и ДВ: затворы дисковые, запорные вентили, предохранительные клапаны, термометры с оправой, манометры с кранами, дутьевой вентилятор.
Дополнительная комплектация
Автоматика подбирается по техзаданию.
Водогрейный котел на отходах 1.1 МВт работает с дымососом.
Для обеспечения циркуляции воды через котел применяется циркуляционный насос, для подпитки котлоагрегата применяется подпиточный насос.
Дымовая труба - подбирается по техзаданию.
Купить котел на древесных отходах 1.1 МВт
Купить котел для сжигания древесных отходов 1.1 МВт стандартной конструкции или по вашему техническому заданию, вы можете оформив заявку в отделе сбыта по телефону 8-913-258-65-82 либо онлайн, через наш сайт. Наши менеджеры дадут консультацию по подбору вспомогательного оборудования для выбранной вами модели и рассчитают стоимость доставки до вашего региона и населенного пункта.